网站域名:www.99biaozhun.com
会员登陆
免费注册
网站首页
最近更新
教育
技术资料
生活
图纸
搜索
上传资料
发布
当前位置:
>
文档资料
> 专门承接复式楼房图纸设计
专门承接复式楼房图纸设计.pdf 免费下载
星级评价:
暂无
文件大小:1.9 M
下载权限:无需注册
更新时间:2022-08-09
文件类型:.pdf
隶属栏目:文档资料
上传会员:凤丫头
浏览次数:1
授权方式:非商业性使用。侵权违法举报 i99biaozhun@163.com
内容介绍
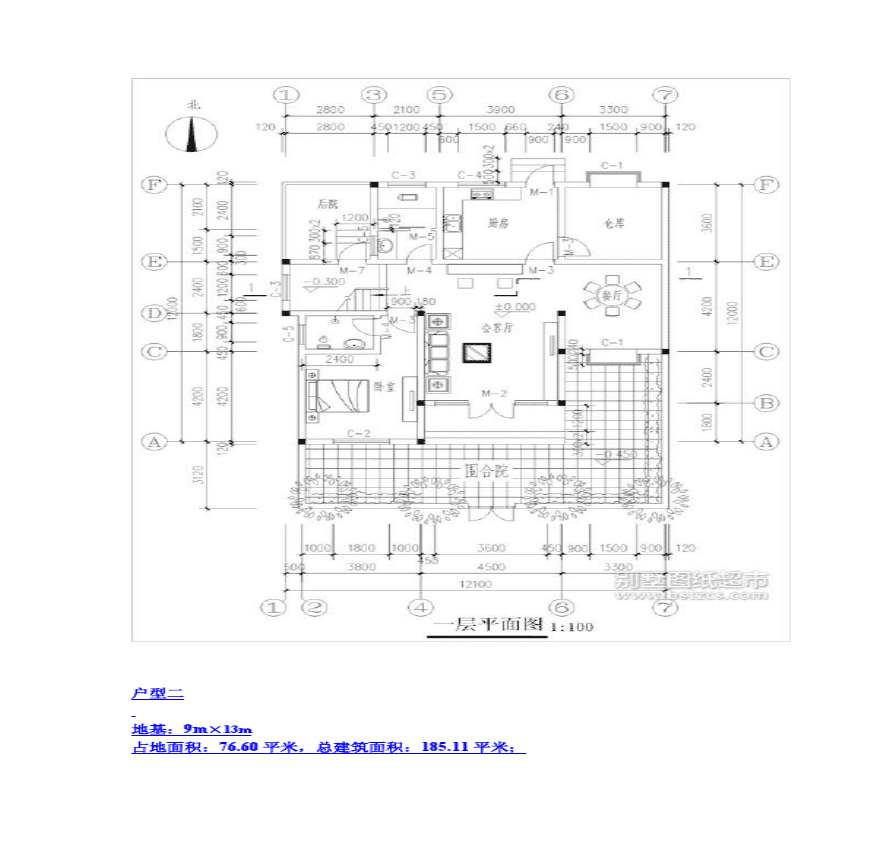
专门承接复式楼房图纸设计资料下载,喜欢的朋友可以下载收藏!
第一页预览图:
第二页预览图:
·
进入下载地址列表
其他资料
房_房下载大全 农村图专题,为您提供农村图相关的资料分享,您可以下载农村图相关进行学习参考,更多农村复式房屋设计图相关内容请访问
【装修服务信息】 NO 风格_农村
【服务信息】 : 复式别墅图纸定制尚远筑家,八方资源云集了众多的农村别墅图纸效果图,农村别墅图纸设计图供应商,采购商,制造商。
。
猜你喜欢
下载排行
2008年硕士研究生入学考试数据结构
点击量:5次
2
机器人图纸_
3
市第一小学综合教学楼建筑结构全套图纸.dwg_
4
[学士]某五层框架中学教学楼毕业设计-土木毕业设
5
中学五层宿舍楼-土木毕业设计(计算书+CAD图纸)
6
(含CAD图纸)同轴式二级圆柱齿轮减速器的设计
7
某五星级酒店设计方案CAD图纸.dwg_
8
地图纸 GB-T 2675-2006
9
通桥(2009)2229A-时速250公里客专预应力溷凝土箱
10
[itpub.net]M1911A1完整原厂扫描图纸(PDF文件_共5
11
M1911A1完整原厂扫描图纸(PDF文件_共56图)_部分1
12
M1911A1完整原厂扫描图纸(PDF文件_共56图)_部分2
13
电力电气设计110kV变电站典型设计图纸110-A-1B-D0
14
园林工程设计图在 A u to CAD 的图纸空间中出图方
15
JS蛇形弹簧联轴器图纸与参数表
16
电力电气设计110kV变电站典型设计图纸110-B-1B-D0
17
电力电气设计110kV变电站典型设计图纸110-B-1B-D0
18
电力电气设计110kV变电站典型设计图纸110-B-1B-D0
19
LNG加气站图纸.dwg_
20
创维29D9AHT (6D50机芯)电视机完整图纸
21
点式 苏州某居住小区建筑设计CAD施工图纸全套.dwg
22
车床的电气改造设计---带CAD图纸与PLC、变频器等
23
Revit明细表创建必知之一:在图纸上的明细表中显
24
Revit里面图纸的日期自动更新到当前
25
新发2012上海电工初级实训图纸-接线(10套)
26
住宅楼毕业设计施工组织设计-土木毕业设计(计算书
27
某高层办公楼毕业设计-土木毕业设计(计算书+CAD图
28
四层教学楼毕业设计全套-土木毕业设计(计算书+CAD
29
五层教学楼毕业设计-土木毕业设计(计算书+CAD图纸
30
【拼布教程】日本拼布_美丽的厨房全套布艺+图纸
31
脱硫工艺设计CAD图纸.dwg_
32
万向联轴器工艺规程设计(含CAD图纸)
33
机械设计课程设计-V带-单级直齿圆柱齿轮减速器(全
34
膜片弹簧离合器设计cad图纸
35
03J609防火门窗图纸
36
[纸模型图纸]SU-27_苏27战斗机
37
河南卫华起重机电气图纸
《期货交易策略》[美]斯坦利.克罗(
点击量:200次
200
2
《期货交易策略》[美]斯坦利.克罗(Stan
200
3
GBT14976-2002流体输送用不锈钢无缝钢
200
4
水利水电工程环境保护概估算编制规程 S
200
5
锅炉、热交换器用不锈钢无缝钢管 GB 13
200
6
GB_50041-2008_锅炉房设计规范
200
7
GBT--9089.1-2008
200
8
韩顺平玩转oracle视频教程笔记
200
9
使用频率最高的一千句 英语
200
10
《毛宗岗批评本三国演义》[明] 罗贯中
200
11
GB/T 50610-2010 车用乙醇汽油储运设
200
12
7944740
200
13
WHO+Classification+of+Tumours+of+Fem
200
14
1998年考研英语真题及解析
200
15
线性代数 98 国防科大 321
200
16
JBZQ 4224-2006 O形橡胶密封圈