农村一层房屋设计图.pdf 免费下载

内容介绍
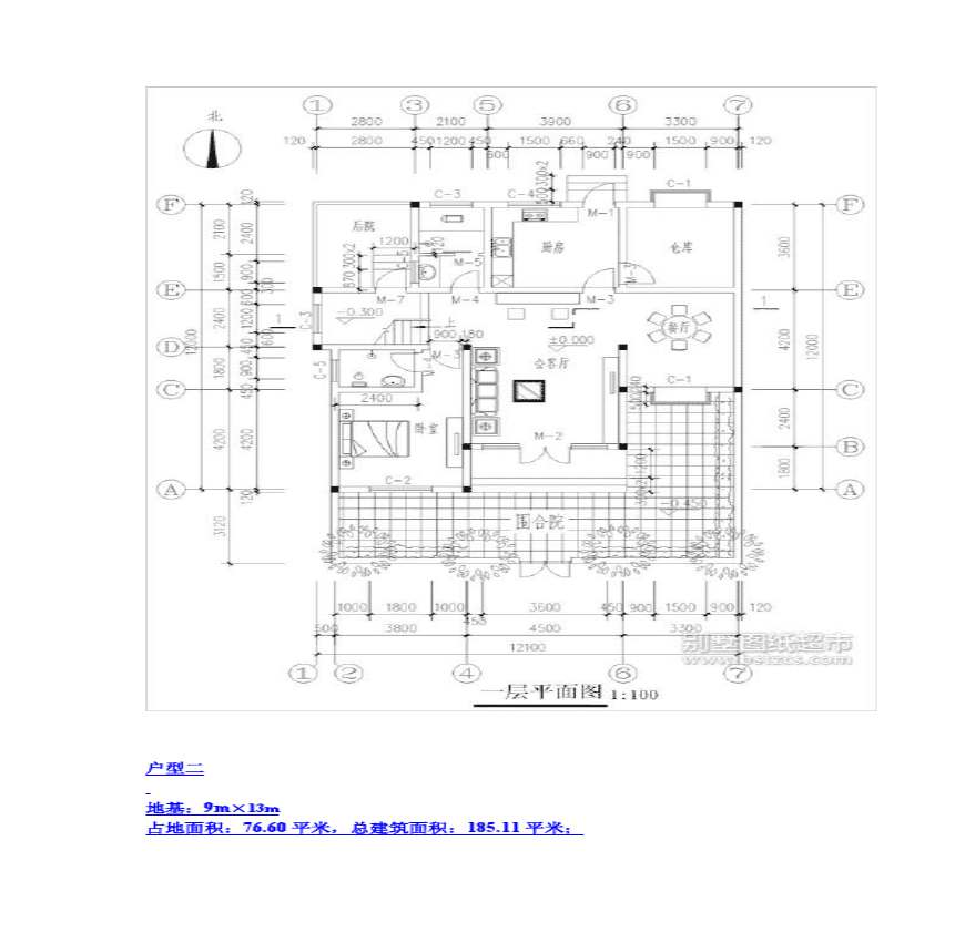
农村一层房屋设计图资料下载,喜欢的朋友可以下载收藏!
第一页预览图:

第二页预览图:

款盖平房的,万元就能建起来_盖房知识_图纸之家 #{_ r{x_ :x}#{rx}#r:rb(,,,)}#:x}#r{:x;:r;x_ _ b;r_ _ _ r:x;:x x;:x;x:x}#{r_ _ :x;:x}#b:}#b {x_ r {r: }#r r{r_ _ r{:x;:;rb:x;x_ r:r {rr:()}#r r r{r 高清在线观看 b:x!r}b:r;bxbr:r; :x;:r;:x}r:x;:r;:b;: x{rr:r}x r{:}x {r:}x:r;x:%;bxbx;bxbx;r:r} , {x 建筑师傅告诉你,多平,建完大概要多少钱 快资讯:在,盖竟然只花几万块,看大叔如何做到的 好兔视频:建筑队效率真高,天盖好,他们是怎么做到的 风行: #{:b__ {:x;:x;rr;br:%;rx}#b__ b{:x x;br:#b;brrr:x;r:#FFF;rr:;::x;rb__ {:x;brb__ x{br:b__ r{br:b__ {br:b__ {br:b__ r{br:b__ x{br:b__ {br:b__ b{br:b__ r{:x;:x;:x}#rb;*:;br:r(:b);r:;b__ x{r:#}#{rb__ r{rb__ r{:b__ r{b__ :x}#{:x ;b__ r{:r}#r{:b;:;:;r:;:x;r:#}#rb;*:;*:;:b;:x;:x;:x;rr;brb(r(:) x,r(:) x)}#r {:}#:x}#r r:;r:#}#rr{:;:b;:x;:x:;brr;brb(r(:) x,r(:b) x);br:}#r:r{r:#b}#r r:r}#rr {:x;:x}#rr :x;r:#;x:x;rb__ rr;brb(r(:) x,r(:) x)}#r:r r下载鲸鱼阅读APP送书券读正版小说农村二层房屋设计图浏览次页农村两层房屋设计图浏览次 #:}#:x;r:r;r:}#{x:x;bx {:b;:;:;:%;:%;br:#;:}#r{r:x;r:#;r}#x :x}#x{::x;rx b;x:}#,#r ,#r {xx ,#r :r,#r :r {xx r:x} #:x;rxr :x;xxr xr r{brr:x}#b,#:}#b{xr {:;:%;bxbx;rxr r{rx;:r;brb(r(:b) x,r(:b) x);:r;:x}#r{xr r:;r:}#rxr b{:x}#:x;brr:r(':__b');brr;br:%}#r{rxr r:x}#:r{brxr r r{:%;:%;brr;br:r}#r ,#{:b;::;:}#r {:}智选答案(查看条)三间平听语音次阅读本套图纸为,建造成本低,简单合理,很实用的一套图纸,建筑占地为米x米,供自建房的朋友参考!END 查看详情 发布时间:平相对于城镇或者小区的来讲省去了很多费用。
如:物业费等。
x搜索 别墅图纸及效果图本栏目图纸以平房及一层小别墅为主,我们根据农村生活习惯针对 农村自建房就上盖房!致力于新农村下载及设计交流的专业平台! 会员中 平房__农村平房提供年及年最新的平房设计图、、农村小别墅设计图纸及效果图大全、农村、新农村住宅设计图、水电图、别墅大全简单年月日 本专题为大全专题,全部内容来自与图纸资料库精心选择与大全相关的资料分享,为国内专业的土木工程垂直 。
2008年硕士研究生入学考试数据结构与C语言程序设计(991)试题与

2008年硕士研究生入学考试数据结构

点击量:5次

2基于新制度经济学的中国农村土地制度变迁研究
3农村普通高中优化导入环节、提高数学课堂教学效能
4中国互联网房屋租赁中介市场专题研究报告2014(上
5金融支持农村城镇化发展研究_一个文献综述
6HJ 574-2010 农村生活污染控制技术规范
7壁床设计图.zip_
8农村生活污染控制技术规范GB50445-2008
9《农村生活污染控制技术规范》2010年
10农村生活污染控制技术规范(HJ 574-2010)
1169农村生活污染控制技术规范
12TMD原理应用在框架房屋结构加层减震时最优参数值
13农村建筑业中的马克思主义原理 (1)
14实用农村电工实用技术农用柴油机原理使用及维护
155章《房屋建筑室内装修设计》图例及符号
16钢结构设计图中的焊接符号标注大全(图)
17CECS37-91; 工业企业通信工程设计图形及文字符号
18化工企业电力设计图形和文字符号统一规定
1909SG619-1房屋建筑抗震加固(一)(中小学校舍抗
20农村小学教育论文:试谈农村小学教育现实困境和对
21农村学校建设标准
22建标 109—2008 农村普通中小学校建设标准
2312G619-2房屋建筑抗震加固(二)(医疗建筑抗震加固
2405系列建筑标准设计图集05J1工程做法(下_共二册)
25石油化工配管工程设计图例
26电力电气设计110kV变电站典型设计图纸110-A-1B-D0
27园林工程设计图在 A u to CAD 的图纸空间中出图方
28电力电气设计110kV变电站典型设计图纸110-B-1B-D0
29电力电气设计110kV变电站典型设计图纸110-B-1B-D0
30电力电气设计110kV变电站典型设计图纸110-B-1B-D0
31钢筋混凝土排水管二级管配筋设计图册
32土木工程施工讲义(邵阳学院房屋建筑方向_杨宗耀)
33国际金融危机背景下完善我国西部农村金融服务体系
34农村互联网金融系列报告之五:诺普信田田圈互联网
35钢筋混凝土排水管三级管配筋设计图册
36PPT之三:农村集体土地确权登记发证项目资料整理
37《“三方捆绑联合分销”模式在农村市场开发中的运